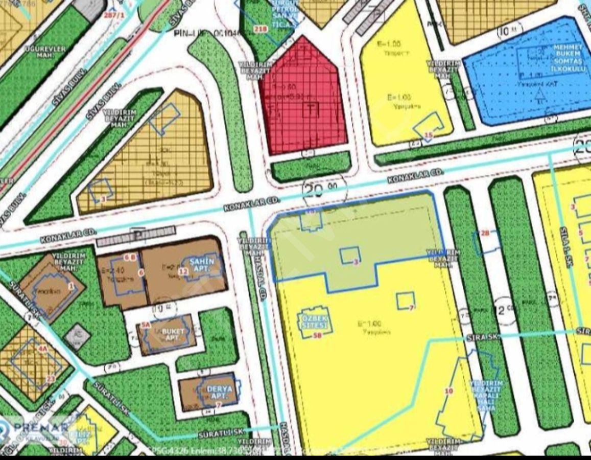
*** Yıldırımbeyazıt mah.Konaklar cad. üzeri harika konumda konut parseli satılıktır.
*** Konut parselinin 4738 m2 nin 274,23 m2 si satılıktır.
*** Konut parselimizin emsal:1
*** Bir daire getirisi vardır.
*** Takasa açıktır.
* ile işaretlenen alanlar zorunludur. Bu formu göndererek verdiğiniz bilgilerin doğruluğunu kabul etmiş olursunuz.
Gayrimenkulünüzün bilgileri
PREMAR Türkiye'ye Hoş Geldiniz.
Ofis Aç!
Gayrimenkul Danışmanı Ol!
Portföy Arama Motoru
Whatsapp